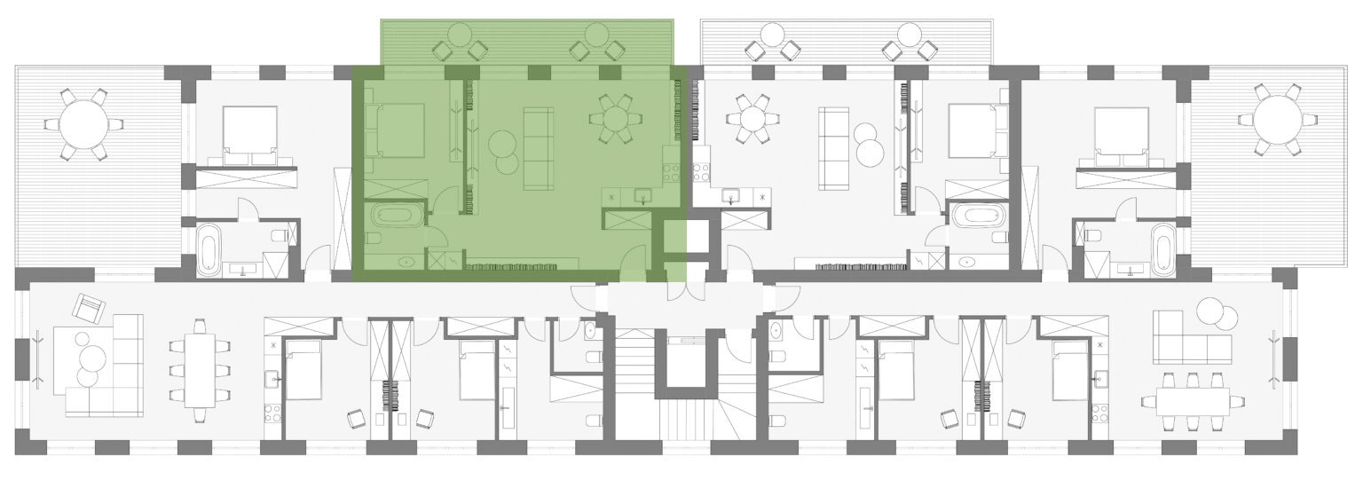
R16
Laisvas
- 1 Koridorius 13,51 m2
- 2 Svetainė, virtuvė 30,24 m2
- 3 Miegamasis 12,98 m2
- 4 Vonia/wc 4,06 m2
- Balkonas 15,88 m2
- Požeminis garažas i Galima įsigyti už papildomą kainą
- Bendras plotas 76.67 m2
2D
2D
3D
3D
Vieta aukšte
×

Į aukšto planą